Quartier "An der Schanze", 1210 Wien

Anmeldungen für Wohnungen sind nicht mehr möglich.
Anmeldungen für andere Bereiche sind möglich (siehe unten).
Die Wohnungsvergabe startet erst im August/September 2026.
Alle Interessenten erhalten rechtzeitig nähere Informationen zum Ablauf.
Mietbeginn: 01.10.2026
Wir ersuchen derzeit von Anfragen abzusehen, da die Vergabe
noch nicht begonnen hat.

Bauplatz H/1, 196 Wohnungen, davon:

130 geförderte Mietwohnungen
66 SMART-Wohungen mit Superförderung
1 Geschäftslokal, flexibel gestaltbar
3 Büro-/Ordination-/Lokalflächen, flexibel gestaltbar

  • Wohnungen für Alleinerziehende
  • Quartierswerkstatt für die Nachbarschaft
  • Kleinkinder-, Kinder- und Jugendspielplatz
  • Gemeinschaftliche Sonnen- und Ausblickterrassen

Fertigstellung: 08/2026

Kontaktaufnahme

Frau Rebeka Kostic Tel.: 01 533 72 38
rebeka.kostic@aufbau.at Mobil: 0676 9119 782
Frau Rebeka Kostic
Tel.: 01 533 72 38
Mobil: 0676 9119 782
rebeka.kostic@aufbau.at

Anmeldungen

Für Anmeldungen bitte das Anmeldeformular herunterladen, ausfüllen und per Mail senden an: rebeka.kostic@aufbau.at
Anmeldungen sind nur für Lokale möglich.

Kleingewerbe

Plandarstellung
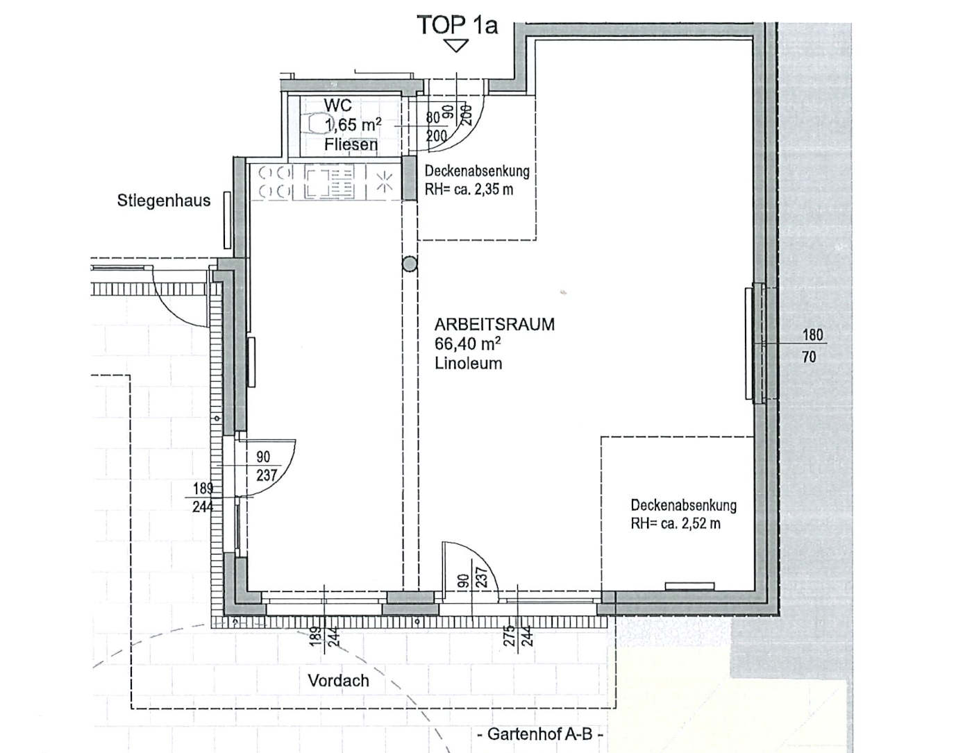
Büro Haus A 1a
Simone Veil Gasse 8/2
ca. 68 m²
Plandarstellung
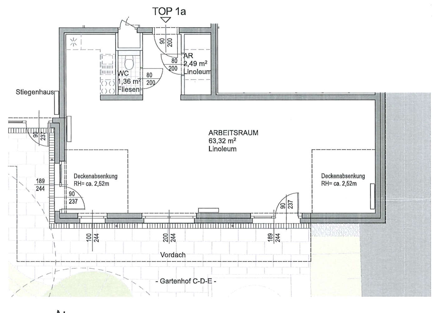
Büro Haus B 1a
Leopoldauer-Haide Gasse 3/2
ca. 70 m²
Plandarstellung
Büro Haus C 1a
Drygalskiweg 49/2
ca. 67 m²

Werkzone

Plandarstellung
Werkstätten Haus I
Simone Veil Gasse 10
ca. 49-77 m²
Plandarstellung
Atelier Haus I
Simone Veil Gasse 10
ca. 50 m²

Lokale

Plandarstellung
Geschäftslokal
Simone Veil Gasse 10
ca. 177 m²
Plandarstellung
Büro-/Ordination-/Lokalfläche
Simone Veil Gasse 10
ca. 660 m²

AUFBAU
Gemeinnützige Bau-, Wohnungs- und Siedlungsgenossenschaft
registrierte Genossenschaft mit beschränkter Haftung

Tuchlauben 8/6.Stock, 1010 Wien

§ 7 (4b) Tochter
AUFBAUWERK
Bau-, Wohnungs- und Siedlungsges.m.b.H.

Tuchlauben 8/6.Stock, 1010 Wien
Tel.: 01 5339893, Fax: DW -9
e-Mail: office@aufbauwerk.at

Kontakt:

e-Mail: office@aufbau.at
Tel.: 01/533 72 38

Bürozeiten:
Mo - Do: 9:00-12:00
13:00-15:00
Fr: 9:00-12:00
⇒ Anfragen zu Bestands- und Neubauwohnungen in Vergabe

Immobilienverwaltung:

e-Mail: hv@aufbau.at
Tel.: 01/533 98 94

Bürozeiten:
Mo - Do: 9:00-12:00
13:00-15:00
Fr: 9:00-12:00
⇒ Bewohnerfragen und Mängelmeldung zur bestehenden Wohnung.

⇒ Notdienst laut Informationsbrett des jeweiligen Wohnhauses für dringende Schadensfälle an Feiertagen und Wochenenden.

Impressum

×

Mibag Tel.: 0800 500 808

×

Mibag Tel.: 0800 500 808